YY:MM:DD:HH:MM:SS:MSC
CRASH BOX
a gasc demolition project
mercredi 9 janvier 2013

Démolition de la Tour des Cyprès B à Marseille

français | english

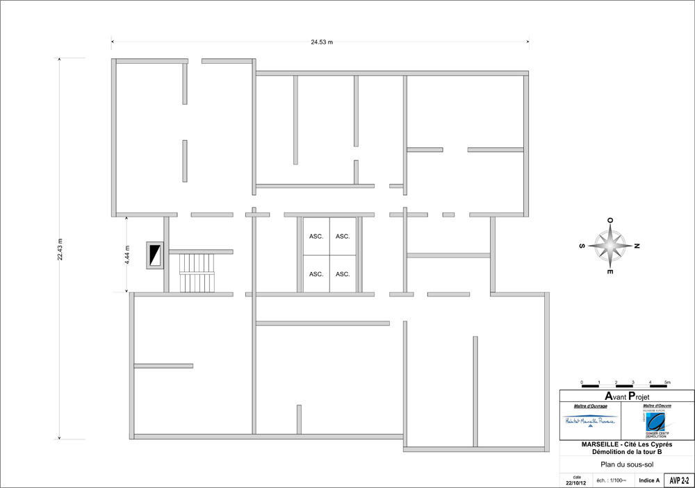
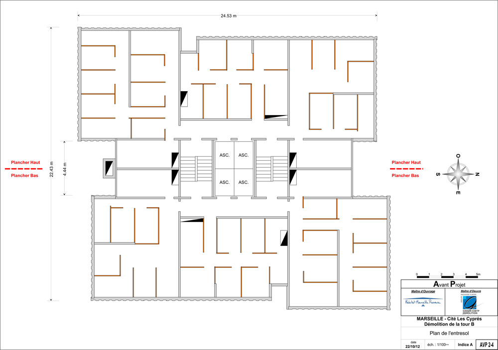
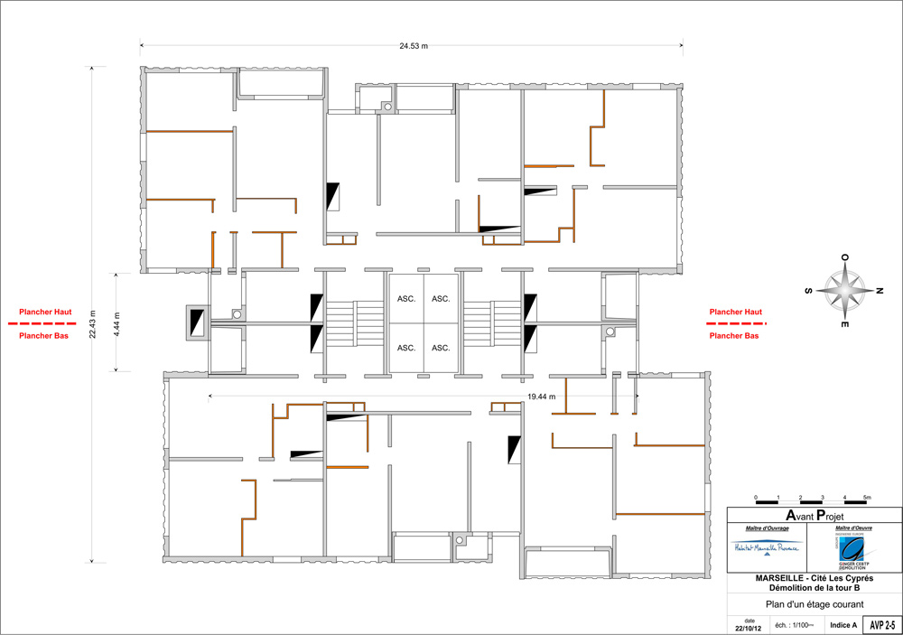
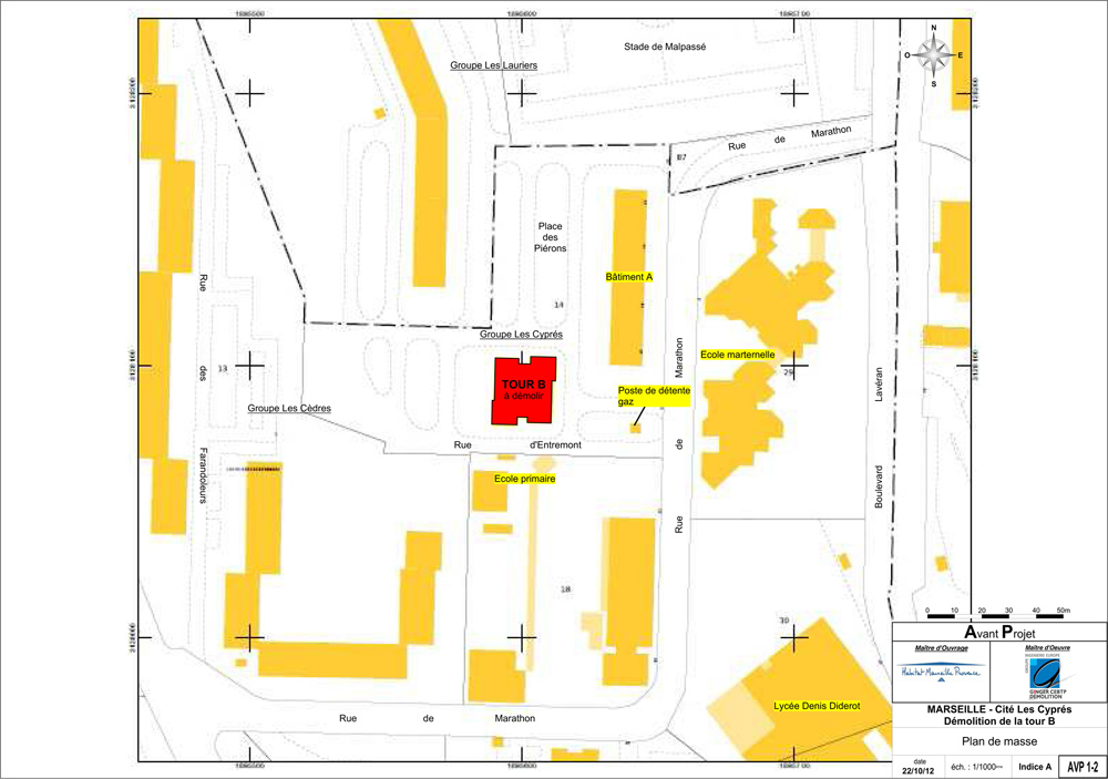
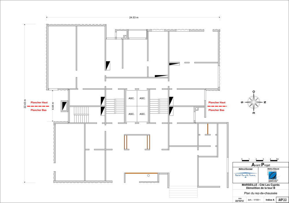
À consulter : Extraits de l’étude de faisabilité de la démolition par foudroyage intégral de la tour des Cyprès B. Documents GINGER-CEBTP DÉMOLITION.


Demolition of the Cypress Tower B in Marseilles

On line : Extracts from the feasibility study of the tower Cypress B demolition. Documents GINGER-CEBTP DEMOLITION.

01 15 16 17 18 19 20 21 22 23 25 27